行業資訊
中鐵城際分享市政道路設計常見錯誤69條
(1)應與規范用詞統一,如“鋸齒形街溝”,應改為“鋸齒形偏溝”。
(2)漏注原來設鋸齒形偏溝時,雨水井的最大距離不大于40m。
(3)設置原來鋸齒形偏溝寬度1m,應改為1.5m。
(4)路面設計彎沉計算書應標明使用軟件名稱。
(5)擋土墻墻底摩檫系數設計人員自定為0.5,太高,有危險,涉及抗滑安全,應根據勘察報告所提數據為準。
(6)設計所用的單位應標準化,如16噸/平方米,應改為160KPa;25號混凝土應改為C25。
(7)擋土墻用手算(包括自編軟件)時,缺三項必算指標,應改用標準軟件計算。
(8)設計的廠區水泥混凝土路面,采用塊石鋪砌基層應改用半剛性基層。(“塊料型手工砌(擺)塊石、片石、拳石等基層或底基層的技術性能不好。容易引起沉陷變形,導致瀝青路面、水泥混凝土路面開裂破壞和平整度不好,在等級道路上不應使用。”—摘自“道路施工工程師手冊”(第二版)P476頁)
(9)駁岸擋土墻的最低洩水孔位置應在常水位以上30cm處。
(10)中間綠化帶滲水盲溝的接入雨水口的φ100低密度PE管的坡度,應按省標圖,不小于1%,圖注0.5%應修改。φ100軟式透水管縱坡不應小于0.15%(省標圖)。
(11)人行道板,常州一直用C25預制水泥混凝土板,應改用滿足最小強度要求,抗壓強度≥30MPa,抗折強度≥3.5MPa,防滑性能指標BPN≥65;
注:2012年7月1日后,應按《城鎮道路路面設計規范》(CJJ169-2012)執行。
(12)水泥混凝土路面施工縫、縮縫的拉桿涂防銹漆縫左縫右只需5cm,圖注為各10cm。
(13)路基基層二灰碎石的碎石級配用懸浮密實型,應改為骨架密實型。
(14)盲道板采購應注明設計要求的強度和抗滑指標。
(15)設計加油站室內為平坡,應有1%坡度,最小為0.3%。
(16)道路設計圖說明中有:“道路縱坡盡可能滿足大于0.3%,但不作為控制要求”。欠妥,不符合規范要求:“道路最小縱坡應大于或等于0.5%,困難時可大于或等于0.3%,遇特殊困難縱坡度小于0.3%時,應設置鋸齒形偏溝或采取其他排水措施。
(17)水泥混凝土路面橫向脹縫應改為:05MR202頁21有鋼筋籠的做法
(18)水泥混凝土路面板塊劃分,面積不宜大于25㎡要求,有一塊近39㎡,應再劃小
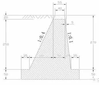
(19)擋土墻背后填土至壓頂頂面時,壓頂下的塊石墻寬度50cm,不能作為擋土墻頂寬來計算,如面坡為1:0.1,背坡為1:0.4,則擋土墻計算頂寬,只能為40cm,應根據所采用的面坡、背坡來確定,不然計算尺寸大于施工尺寸,設計不安全

(20)圖注擋土墻面坡傾斜度10:1、背坡傾斜度3:1、墻底傾斜度1:10,不符合《道路工程制圖標準》(GB 50162-92),應改為1:0.1、1:0.33及習慣注法0.1:1。
(21)綠化帶排水盲溝的透水土工布,不應伸入側石基座C15水泥砼中去,對基座C15起分隔作用,影響基座強度。
(22)擋土墻立面圖(縱斷面圖)上,應示出巖土工程柱狀地質剖面圖,便于設計、校核、審核、施工的查對。
(23)人行道下采用的8cmC15砼基層,應鋸橫向縫,并使用瀝青灌縫(水泥混凝土板在道路面層的受力性能,在做基層、底基層時,板塊劃分的原理要求是相同的)。
(24)水泥混凝土路面小于200米半徑的曲線起、終點,應設無傳力桿脹縫,因設傳力桿會產生次應力,對水泥混凝土路面不利。
(25)設計文件中的計量單位:米、厘米、毫米,按標準一律為小寫英文字母,不能為大寫。如:m、cm、mm、m2、cm2,不能為:M、CM、MM、M2、CM2……。
(26)設計的瀝青混凝土路面、水泥混凝土路面均應提出抗滑技術指標。
(27)有計算書要求的工程,計算書封面應有設計人/日期、校核人/日期、審核人/日期的簽署,并保存歸檔。
(28)漿砌塊石基礎剛性角為35°,Δh≥1.43Δb,臺階寬30cm時,臺階高為50cm,不能臺階寬50cm,臺階高50cm。
(29)粉煤灰燒失量≤10%,不能為≤20%,應按高標準的執行。
(30)在河塘底部設置50cm建筑垃圾……。“建筑垃圾”很難定性,都是磚塊、石塊,還是粉刷灰、地坪泥灰……。建議改為30cm毛片墊層回填。(注:反過來,如現場建筑垃圾符合毛片要求的,可采用其代毛片)。
(31)當水泥路面脹縫的傳力桿可能受橫向脹縮力的脹縫,應做成無傳力桿的脹縫,避免傳力桿產生次應力,破壞水泥路面
(32)城市支路的瀝青路面設計使用年限15年,應改為10年。
(33)本工程路面類別稱瀝青混合料,改為稱“瀝青混凝土”更確切些。
(34)設計的施工圖紙圖框尺寸不準確,按《道路工程制圖標準》(GB 50162-92)
第2.1.1條 圖幅及圖框尺寸應符合表2.1.1的規定(圖2.1.1)

第2.1.3條 圖幅的短邊不得加長。長邊加長的長度,圖幅A0、A2、A4應為150mm的整倍數;圖幅A1、A3應為210mm的整倍數;
(35)瀝青混合材料設計參數、基層、底基層材料、土基設計參數中的抗壓模量(MPa),應稱為抗壓回彈模量(MPa)
注:見“《公路瀝青路面設計規范》(JTG D50-2006)勘誤表(附件2)。
(36)橋臺、擋土墻立面圖(縱斷面圖)上,應示出巖土工程柱狀地質剖面圖,便于設計、校核、審核、施工的查對。
(37)小區道路最小轉彎半徑的滿足要求,應重視,按新規定,車速在5~10km/h時,小轎車為6m、小型客車為7m、大型客車為12.5m、鉸接車為12.5m。(小區內道路的路緣半徑應符合通行滿足一般消防車要求R≥8.5m)
(38)小區路邊停車帶橫坡采用2%,宜改為0.5%,以免發生溜坡。
(39)小區水泥路面的設計使用年限采用10年,應改為20年。
(40)水泥標號不低于425號,是舊標準,應改為新標準不低于32.5級。
(41)設計變更通知單中,附件欄一定要填寫所附圖紙編號,如變01/05~變05/05;變更原因,一定要在設計原因或非設計原因選擇一個前面方框中打勾。
(42)小區內小轉彎半徑或直角轉彎處,有建筑物阻擋視線,不能保證安全視距要求時,應增設轉角鏡。
(43)路基填土的最小壓實厚度不得小于8cm,應改為不得小于10cm(見《公路路基施工技術規范》4.2.2 2 1)。
(44)施工圖的總說明,應按統一要求次序填寫,不易漏項。
(45)停車坪標高高出路面5cm,宜改為2~3cm。
(46)水泥混凝土路面結構圖中的假縫,不能用直線表示,應用波浪線表示。
(47)臨水面的塊石砌體,最小砂漿標號M7.5,應改為M10。
(48)耐久性設計要求,工程所用素混凝土最低標號為C15。
(49)道路路面結構設計,重要的指標是使設計使用年限內能承受的交通荷載—累計標準軸載(次),與實際需要的相符?,F在很多的路面結構計算書中,僅計算標出路面驗收彎沉值。應按新規范,根據對應的可靠度系數,算出設計彎沉值,然后再計算出所能承受的累計標準軸載(次),對照是否滿足設計要求。
(50)使用已廢止的規范如:
1.《公路改性瀝青路面施工技術規范》(JTJ 036-98)已有《公路瀝青路面施工技術規范》(JTG F40-2004)替代;
2.《公路軟土地基路堤設計與施工技術規程》(JTJ017-96)已有《公路路基施工技術規范》(JTG F10-2006)替代,由《公路路基設計規范》(JTG D30-2004)涵蓋。
(51)圖簽上簽名不能跨線簽名,兩格為同一人時,應簽二次名。
(52)圖紙圖簽欄旁應留出蓋出圖章的位置。否則蓋上章后,原設計內容就看不清了,見下圖,目前道橋專業沒有實行注冊工程師制度,左邊該欄暫不留出空位置來。上面出圖章位置要留出,但不畫出來,凡要蓋出圖章的圖紙都要留。
(53)人行道路面結構中,3cm1:3水泥砂漿,應改為M10水泥砂漿。
(54)路面構造深度TD=0.2~0.4mm,應改為TD≥0.2~0.4mm,現按《城鎮道路路面設計規范》(CJJ169-2012)應為TD≥0.55mm。
(55)臨河的擋土墻、駁岸設計時,應進行洪水位時的擋土墻浸水狀態的受力驗算,看抗滑移、抗傾覆等合格否。
(56)現行有效版《公路路基施工技術規范》(JTG F10-2006)替代已作廢的規范有:
①《公路路基施工技術規范》(JTJ 033-95)
②《公路軟土地基路堤設計與施工技術規范》(JTJ017-96);
③《公路粉煤灰路堤設計與施工技術規范》(JTJ016-93);
④《公路加筋土工程設計規范》(JTJ015-91);
⑤《公路加筋土工程施工技術規范》(JTJ035-91)
(57)凡是設計擋土墻、深層攪拌樁的施工圖,特別是豎向剖面圖中,應附有巖土工程勘察的柱狀圖(或剖面圖),可使設計人員直接見到結構物的持力層在地質剖面的那一層,便于設計校審。不能讓校審人員自己去尋找每一處的勘察資料,校審人員可去找勘察資料核對,設計人員應在設計圖紙中示出相應的巖土工程勘察剖面圖。
(58)側石埋深一般應取12cm~15cm,側石最小埋深10cm,特別注意做鋸齒形偏溝的雨水口處的側石埋深要保證不小于10cm,以保證側石的穩定性。有的標準路段,采用商品預制側石12cm×24cm時,采用側石外露15cm時,側石埋深只有9cm,此時12×24應改為12×25,若成品側石采購有困難時,可改為外露14cm,保證側石埋深10cm。
(59)《公路軟土地基路堤設計與施工技術規范》(JTJ017-96)已廢止,不能再用,已由《公路路基施工技術規范》(JTGF10-2006)替代
(60)城市道路“白加黑”工程中,由于要保留人行道鋪裝,路面“白加黑”后,路面加高,側石外露高度只有3~4cm,不符合城市道路側石外露最小高度10cm的要求,因雨水大時,路邊積水會漫上人行道,影響人行交通,今后設計中應注意此類問題。
(61)道路工程結構設計文件中,對本工程的不同工程結構,應按規定提出不同的設計使用年限。
(62)水泥混凝土路面設計厚度應為計算厚度+0.6mm刻槽厚度后取整。
(63)構筑物(擋土墻、墻基、橋臺等)當基礎下采用10cm碎石墊層時,改用10cmC15~C20水泥混凝土墊層。理由:
1)碎石墊層的作用:
當處理軟弱地基,它可以起到擴散應力的作用,同時可以起到排水的作用,可以加速下部土層的固結和沉降。
不是處理軟弱地基,特別是沒有排水系統時,這是一個積水的地方,地基會被泡軟,所以一般地基就不采用了,碎石墊層還有一個問題,其檢測壓實度,很難做。有時碎石墊層給帶水作業創造條件,碎石一下,一找平即可搞下一步作業。同樣素砼墊層可以起到擴散應力的作用,同時還有其他作用,見后敘述;
2)砼墊層的作用:
①主要起平整放線和施工過程中對地基土的保護作用;
②起平衡整體承載作用;
③起穩定層作用;
④(當上為鋼筋混凝土基礎時)給施工創造一個較好的工作面,便于鋼筋的綁扎和定位;
⑤(當上為鋼筋混凝土基礎時)主要是隔離土層和基礎承臺,起底模的作用;
⑥(當上為鋼筋混凝土基礎時)減少地下水對鋼筋混凝土的侵蝕作用,否則底板鋼筋的保護層應當為70mm;
⑦質量檢測手段成熟,不像碎石墊層壓實度不好測。
據了解,目前現行建筑設計中也是不再采用碎石墊層,而是采用素水泥混凝土墊層的。
(64)瀝青混凝土路面所用粗集料的磨光值,在常州地區,應為:快速路與主干路PSV>42;次干路PSV>40;支路PSV>38。
(65)小區道路最小設計縱坡≥0.2%,很多設計達不到,加密雨水口,不能全部解決按規范的排水要求。瀝青路面可設計平石寬度范圍的鋸齒形偏溝,水泥混凝土路面不設平石,可設計成寬度為50cm的鋸齒形偏溝。
(66)鋼筋原Ⅰ、Ⅱ級,按新標準為R235、HRB335鋼筋,鋼筋符號要用圖塊符號,標準又好看。
(67)城市道路防洪標準,應隨所在地塊的標準執行。
(68)檔土墻設計填土計算內磨察角:H≤6m,φ=35°;H>6m,φ=30°。
(69)擋土墻設計時,墻后應加不可預見的堆載。如臨時施工堆載、植樹、綠化、臨時人群……等因素的荷載,可分別不同情況,按:
①0.5m土高 則為900kg/㎡(有臨時堆載時);
②0.22m土高 則為400 kg/㎡(有臨時人群荷載時);
③原來就布滿有外加荷載時,就不再加不可預見的堆載。
更多相關信息 還可關注中鐵城際公眾號矩陣 掃一掃下方二維碼即可關注

文章推薦
- “全域土地綜合整治”的5個建設內容和6個整治模式
- 上海:《關于深入開展全市域土地綜合整治 助推郊野空間提質增效的實施意見》解讀
- 陽泉市規劃和自然資源局召開全域土地綜合整治工作專題會
- 工業園區“定制化”供水:中鐵城際智慧水務系統如何匹配高純度用水需求?
- 農村供水“最后一公里”破局:中鐵城際供水智慧系統如何解決分散站點運維難題?
- AI+物聯網:中鐵城際智慧供水系統如何從“被動搶修”轉向“主動防御”?
- 市政道路設計流程與技巧:新手快速上手的6個核心步驟
- 市政道路設計關鍵要點:從線形規劃到管線綜合的避坑指南
- 2025市政道路設計最新規范與全流程解析
- 自然資源部:推進全域土地綜合整治 已經累計整治超1000萬畝




